Réf : BV10000067

Gujan-Mestras (33470) Centre la Hume

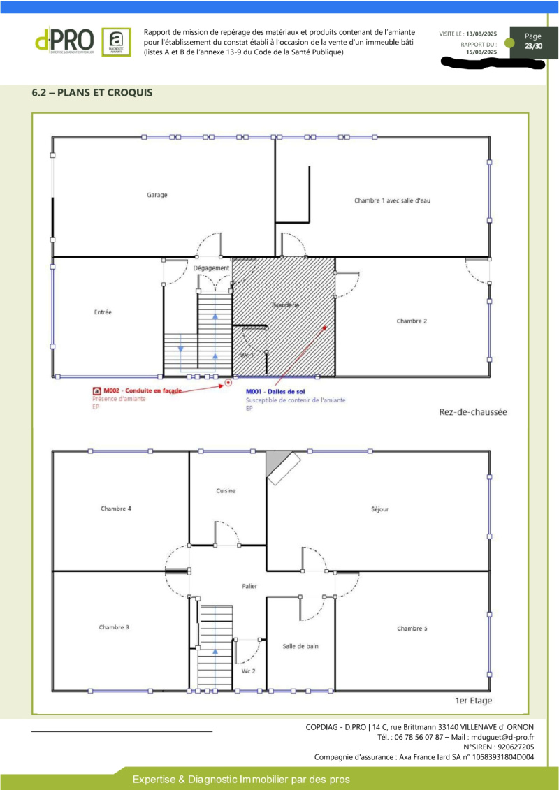
Maison de pays années 1930 – Centre de La Hume – Calme absolu Idéalement située au calme, en plein cœur de La Hume, cette charmante maison de pays des années 1930 séduira par son authenticité et son emplacement privilégié. D’une superficie d’environ 125 m² habitables, elle se compose au rez-de-chaussée d’une entrée avec placard, d’une salle d’eau avec WC, ainsi que d’un espace buanderie. La cuisine aménagée et équipée s’ouvre sur un agréable séjour et un coin salon en demi-niveaux, offrant un accès direct à la terrasse et à la piscine, pour une belle continuité entre intérieur et extérieur. À l’étage, l’espace nuit comprend trois chambres, dont une avec solarium, ainsi qu’une salle d’eau et des WC. À l’extérieur, vous profiterez d’une terrasse couverte conviviale, donnant accès à la piscine, d’un espace pool house avec cuisine, ainsi que d’une chambre aménagée, le tout édifié sur un terrain de 486 m². Son emplacement est un véritable atout : commerces, port, plage et gare de La Hume accessibles à pied, à moins de 500 mètres. Le petit plus rare sur le secteur : une cave, apportant un espace de stockage supplémentaire très apprécié. Un bien coup de cœur, idéal pour une résidence principale comme secondaire.  

Les caractéristiques Du bien

Code postal 33470
Surface habitable (m²) 125 m²
surface terrain 470 m²
Surface loi Carrez (m²) 125 m²
Nombre de chambre(s) 3
Nombre de pièces 4
Nombre de niveaux 1
Nb de salle de bains 1
Nb de salle d'eau 1
Mode de chauffage Electrique
Type de chauffage Radiateur
Format de chauffage Individuel
Terrasse OUI
Exposition Est
Année de construction 1930
Copropriété NON

Les infos Financières

Prix de vente 465 000 €
Les honoraires d'agence seront intégralement à la charge du vendeur  
Taxe foncière annuelle 2 235 €

Les infos Energetiques

DPE GES

Logement à consommation énergétique excessive : classe F

Montant estimé des dépenses annuelles d'énergie pour un usage standard est compris entre 3 505 € et 4 743 € . Prix moyens des énergies indexés sur les années 2021, 2022 et 2023 (abonnements compris).

Nos outils

Imprimer

Localisation Du bien

  • Commerces et santé
  • Loisirs
  • Ecoles
  • Transports
  • Pratique
Intéressé(e) par Ce bien ?

* Champ obligatoire

contacter l'agence
Les informations recueillies sur ce formulaire sont enregistrées dans un fichier informatisé par La Boite Immo agissant comme Sous-traitant du traitement pour la gestion de la clientèle/prospects de l'Agence / du Réseau qui reste Responsable du Traitement de vos Données personnelles. La base légale du traitement repose sur l'intérêt légitime de l'Agence / du Réseau. Elles sont conservées jusqu'à demande de suppression et sont destinées à l'Agence / au Réseau. Conformément à la loi « informatique et libertés », vous disposez des droits d’accès, de rectification, d’effacement, d’opposition, de limitation et de portabilité de vos données. Vous pouvez retirer votre consentement à tout moment en contactant directement l’Agence / Le Réseau. Consultez le site https://cnil.fr/fr pour plus d’informations sur vos droits. Si vous estimez, après avoir contacté l'Agence / le Réseau, que vos droits « Informatique et Libertés » ne sont pas respectés, vous pouvez adresser une réclamation à la CNIL. Nous vous informons de l’existence de la liste d'opposition au démarchage téléphonique « Bloctel », sur laquelle vous pouvez vous inscrire ici : https://www.bloctel.gouv.fr Dans le cadre de la protection des Données personnelles, nous vous invitons à ne pas inscrire de Données sensibles dans le champ de saisie libre.
Ce site est protégé par reCAPTCHA, les Politiques de Confidentialité et les Conditions d'Utilisation de Google s'appliquent.
Ces biens peuvent aussi vous intéresser
Gujan-Mestras (33470)

APPARTEMENT NEUF LIVRABLE T1 2027 / 0 FRAIS D'AGENCE / FRAIS DE...

Gujan-Mestras (33470)

Gujan-Mestras : Villa des Années 60 à Rénover, Idéalement Située