Réf : 72

Biganos (33380) Appartement T3 avec BALCON et PARKING à Biganos

Arrêter de payer un loyer pour rien et de laisser partir votre argent pour vous chauffer : constituez vous un patrimoine immobilier en achetant ce très bel appartement T3 neuf prêt à habiter ou à louer et répondant aux dernières normes énergétiques, avec accès sécurisé.

Proche de toutes commodités de commerces, écoles, collège et des transports (gare à pied) , bus au pied de l'immeuble, cet appartement très clair avec balcon et parking saura vous séduire avec son salon/séjour, lieu de vie incontournable et sa cuisine ouverte, la partie nuit se compose de 2 chambres spacieuses avec placards aménagés, une salle d'eau avec meuble vasque et sèche serviette et wc séparé.

Cet appartement est accessible par son entrée directe avec placard aménagé et dispose d'une place de parking sécurisé.

Pas de frais d'agence à prévoir.


Les caractéristiques Du bien

Code postal 33380
Surface habitable (m²) 62 m²
Surface loi Carrez (m²) 62,23 m²
Nombre de chambre(s) 2
Nombre de pièces 3
Etage 2
Ascenseur NON
Vue centre ville
Nb de salle de bains 1
Nb de salle d'eau 1
Cuisine Américaine
Mode de chauffage Gaz
Type de chauffage TRAD_TYPE_CHAUFF_CHAUDIERE
Format de chauffage Individuel
Balcon OUI
Loggia NON
Terrasse NON
Cave NON
Exposition Nord-Est
Année de construction 2024
Copropriété OUI
nombre de lots 15
Découvrir le bien

Les infos Financières

Prix de vente honoraires TTC inclus 265 000 €

Les infos Energetiques

DPE GES

Montant estimé des dépenses annuelles d'énergie pour un usage standard est compris entre 373 € et 504 € . Prix moyens des énergies indexés sur les années 2021, 2022 et 2023 (abonnements compris).

Nos outils

Imprimer

Localisation Du bien

  • Commerces et santé
  • Loisirs
  • Ecoles
  • Transports
  • Pratique
Etage 2
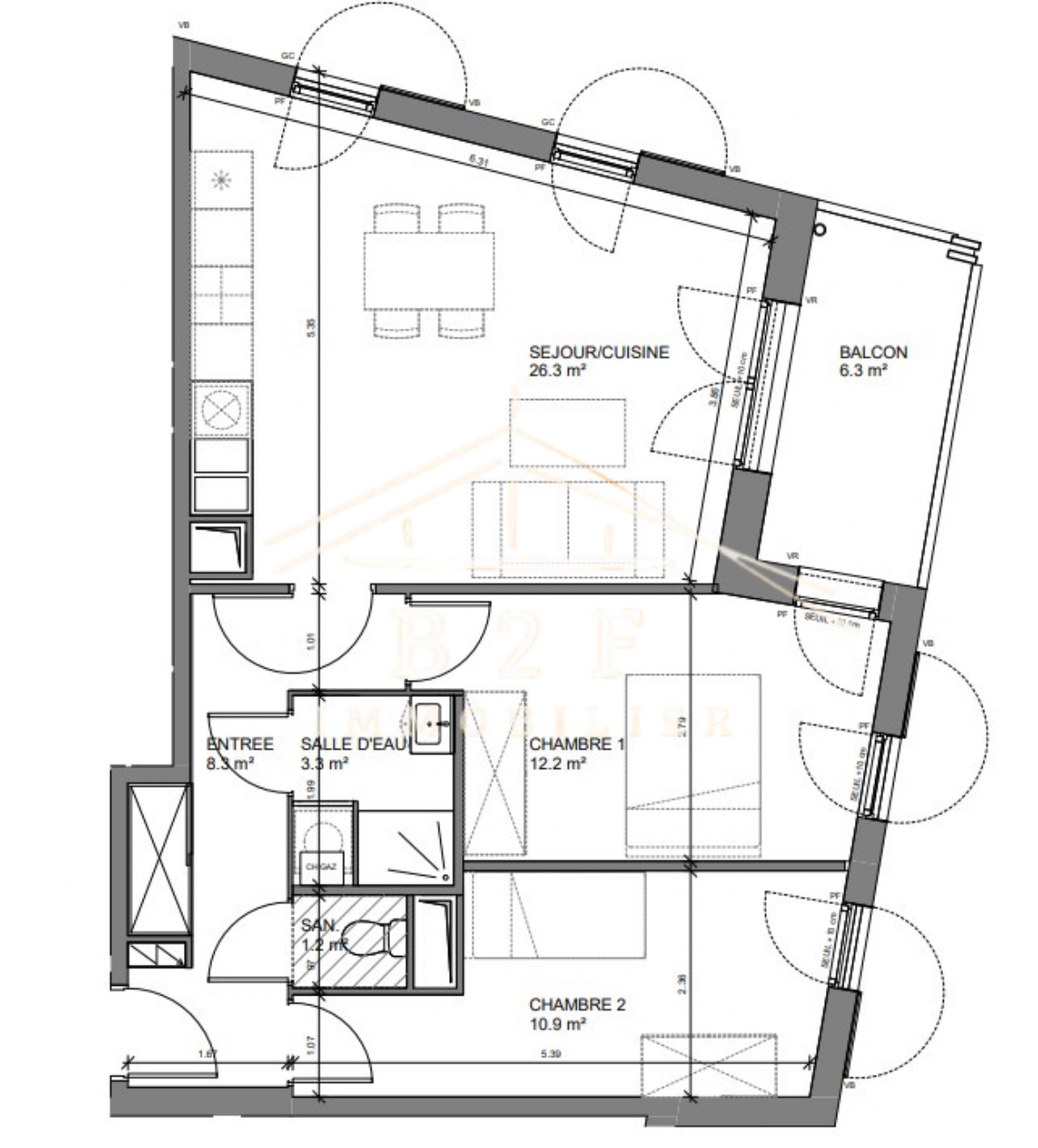
cuisine

entrée 8.3 m²

WC 1.2 m²

salle de bain 3.3 m²

balcon 6.3 m²

salon/sejour 26.3 m²

chambre 12.20 m²

chambre 10.09 m²

Intéressé(e) par Ce bien ?

* Champ obligatoire

contacter l'agence
Les informations recueillies sur ce formulaire sont enregistrées dans un fichier informatisé par La Boite Immo agissant comme Sous-traitant du traitement pour la gestion de la clientèle/prospects de l'Agence / du Réseau qui reste Responsable du Traitement de vos Données personnelles. La base légale du traitement repose sur l'intérêt légitime de l'Agence / du Réseau. Elles sont conservées jusqu'à demande de suppression et sont destinées à l'Agence / au Réseau. Conformément à la loi « informatique et libertés », vous disposez des droits d’accès, de rectification, d’effacement, d’opposition, de limitation et de portabilité de vos données. Vous pouvez retirer votre consentement à tout moment en contactant directement l’Agence / Le Réseau. Consultez le site https://cnil.fr/fr pour plus d’informations sur vos droits. Si vous estimez, après avoir contacté l'Agence / le Réseau, que vos droits « Informatique et Libertés » ne sont pas respectés, vous pouvez adresser une réclamation à la CNIL. Nous vous informons de l’existence de la liste d'opposition au démarchage téléphonique « Bloctel », sur laquelle vous pouvez vous inscrire ici : https://www.bloctel.gouv.fr Dans le cadre de la protection des Données personnelles, nous vous invitons à ne pas inscrire de Données sensibles dans le champ de saisie libre.
Ce site est protégé par reCAPTCHA, les Politiques de Confidentialité et les Conditions d'Utilisation de Google s'appliquent.
Ces biens peuvent aussi vous intéresser
Nouveauté
Bordeaux (33300)

✨ BORDEAUX CHARTRONS - COUP DE CŒUR QUARTIER ST-MARTIAL ! ✨...