Réf : SB VEFA LTDB
Coup de coeur

La Teste-de-Buch (33260) À La Teste-De-Buch, appartement dernier étage à acheter

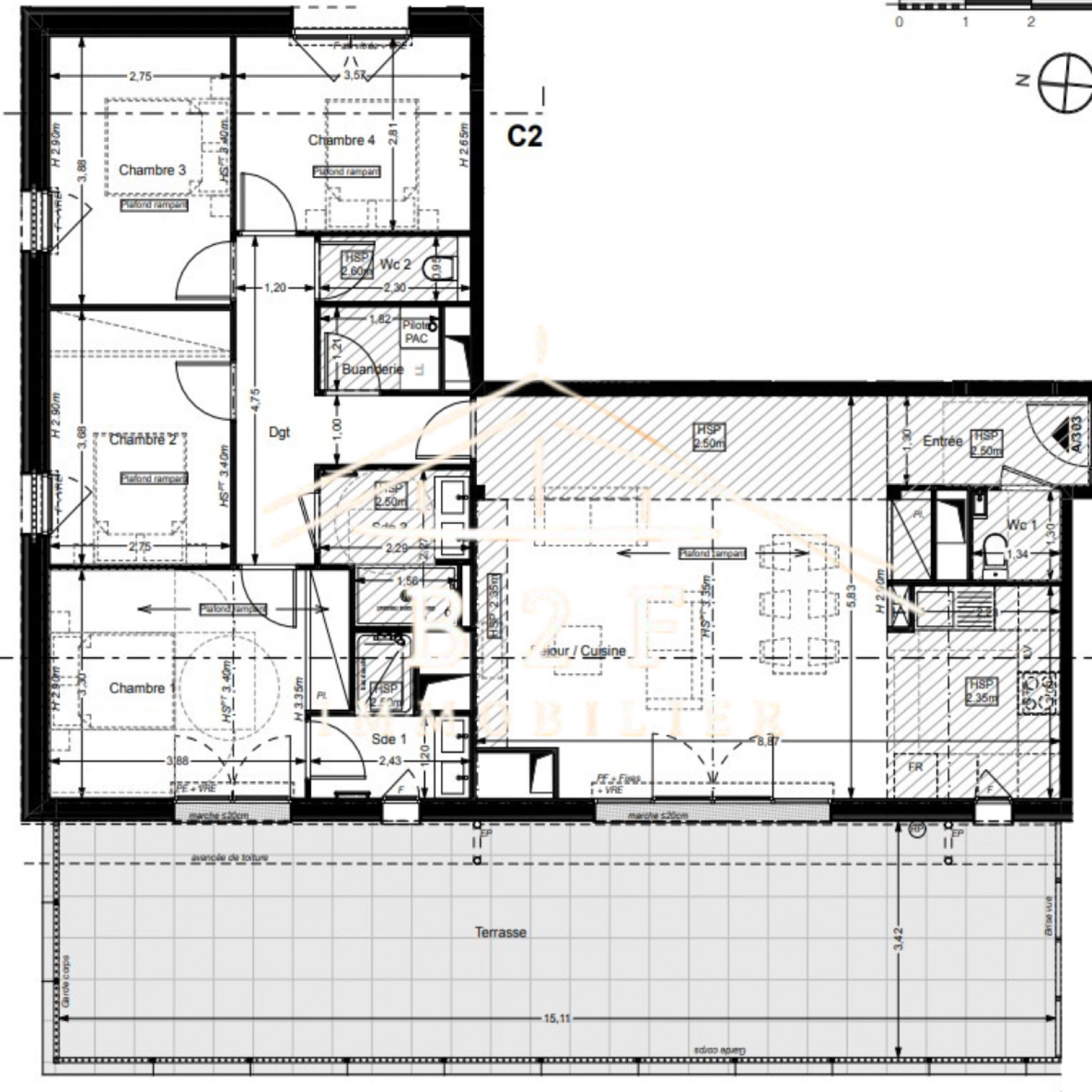
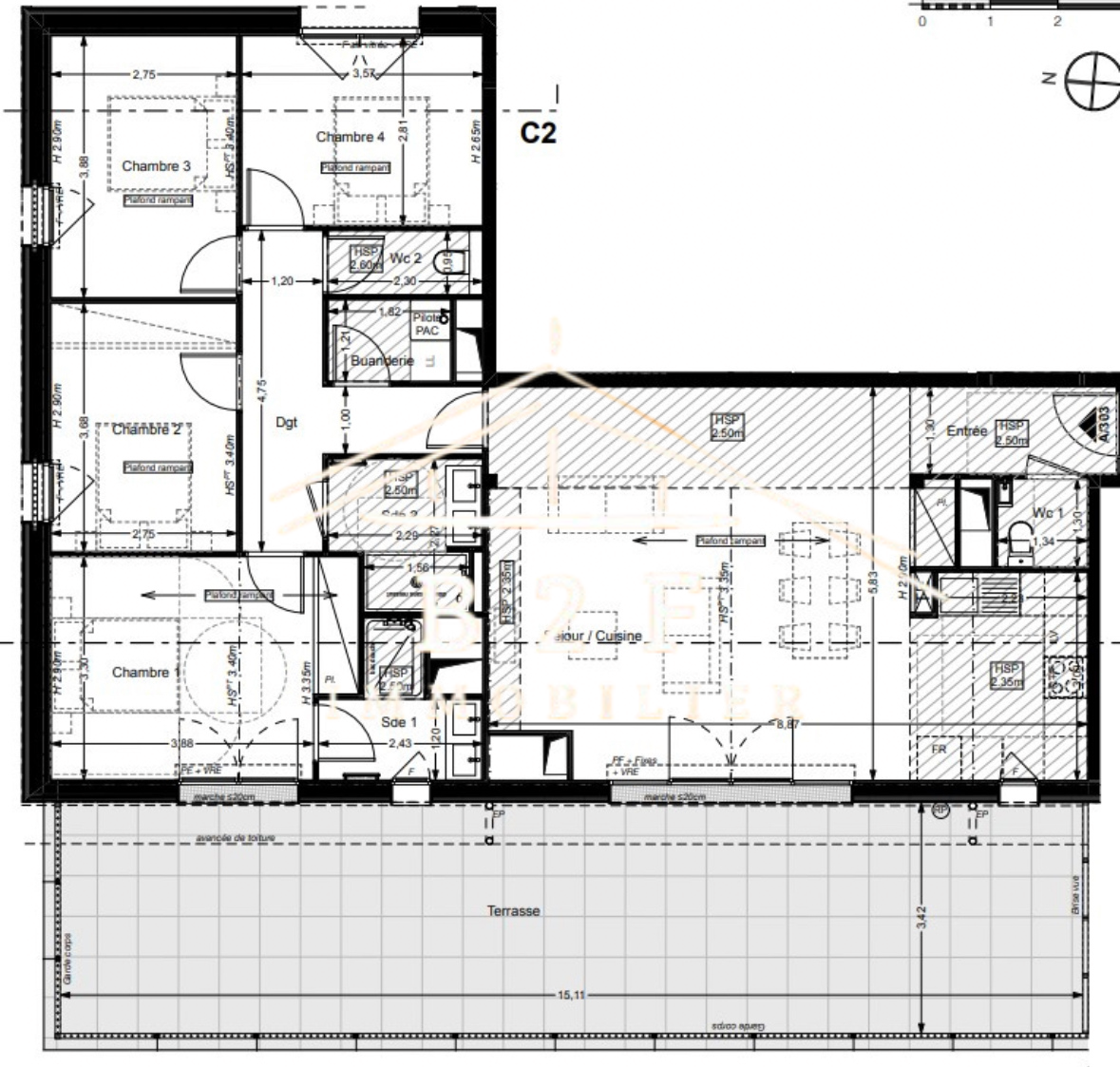
VEFA : Appartement T5 d'exception niché sur le toit d'une petite résidence de standing avec une large terrasse de 51.8m2 en plein coeur de ville sur la commune de La Teste-De-Buch. Cet appartement offre 118m2 habitables au 3ème et dernier étage.

Il est doté d'un grand salon/salle à manger avec cuisine ouverte, l'espace nuit comprend 4 chambres dont une suite parentale avec sa salle d'eau, une 2ème salle d'eau est également présente ainsi qu'un WC.

Pour vos commodités, vous trouverez également un hall d'entrée avec un WC, ainsi qu'une buanderie. Cet appartement accessible PMR dispose d'un accès facile via l'ascenseur de l'immeuble. Il s'accompagne de 2 emplacements de parking. Le prix est fixé à 850 000 €. Vous pouvez contacter B2F Immo pour en savoir plus ou vous faire accompagner dans votre recherche de logement. Logement propice à la vie familiale et aux retrouvailles pour d'agréables vacances sur le bassin d'Arcachon.

Les caractéristiques Du bien

Code postal 33260
Surface habitable (m²) 118 m²
Nombre de chambre(s) 4
Nombre de pièces 5
Etage 3
Nombre de niveaux 1
Ascenseur OUI
Mode de chauffage Electrique
Type de chauffage TRAD_TYPE_CHAUFF_AIR_EAU
Format de chauffage Individuel
Balcon NON
Terrasse OUI
Cave NON
Exposition Ouest
Copropriété OUI

Les infos Financières

Prix de vente honoraires TTC inclus 850 000 €

Les infos Energetiques

DPE GES
DPE ANCIENNE VERSION

Nos outils

Imprimer

Localisation Du bien

  • Commerces et santé
  • Loisirs
  • Ecoles
  • Transports
  • Pratique
Etage 3
entrée 4 m²

pièce à vivre 46.4 m²

chambre 14.2 m²

chambre 10.1 m²

chambre 10.7 m²

chambre 10 m²

salle d'eau 4 m²

salle d'eau 4 m²

WC 2.2 m²

WC 2 m²

Dégagement 8.1 m²

terrasse 51.8 m²

Rez de chaussée
buanderie 2.2 m²

Intéressé(e) par Ce bien ?

* Champ obligatoire

contacter l'agence
Les informations recueillies sur ce formulaire sont enregistrées dans un fichier informatisé par La Boite Immo agissant comme Sous-traitant du traitement pour la gestion de la clientèle/prospects de l'Agence / du Réseau qui reste Responsable du Traitement de vos Données personnelles. La base légale du traitement repose sur l'intérêt légitime de l'Agence / du Réseau. Elles sont conservées jusqu'à demande de suppression et sont destinées à l'Agence / au Réseau. Conformément à la loi « informatique et libertés », vous disposez des droits d’accès, de rectification, d’effacement, d’opposition, de limitation et de portabilité de vos données. Vous pouvez retirer votre consentement à tout moment en contactant directement l’Agence / Le Réseau. Consultez le site https://cnil.fr/fr pour plus d’informations sur vos droits. Si vous estimez, après avoir contacté l'Agence / le Réseau, que vos droits « Informatique et Libertés » ne sont pas respectés, vous pouvez adresser une réclamation à la CNIL. Nous vous informons de l’existence de la liste d'opposition au démarchage téléphonique « Bloctel », sur laquelle vous pouvez vous inscrire ici : https://www.bloctel.gouv.fr Dans le cadre de la protection des Données personnelles, nous vous invitons à ne pas inscrire de Données sensibles dans le champ de saisie libre.
Ce site est protégé par reCAPTCHA, les Politiques de Confidentialité et les Conditions d'Utilisation de Google s'appliquent.
Ces biens peuvent aussi vous intéresser
Nouveauté
Gujan-Mestras (33470)

Villa d'exception à Gujan Mestras 4chbres, Piscine, Pool House,...

Gujan-Mestras (33470)

Maison de Charme Traditionnelle de 144 m2