Réf : SB VN GM

Gujan-Mestras (33470) T3 Neuf avec terrasse 0 Frais d'agence & Frais de Notaire Réduits & Eligible PTZ

Découvrez ce charmant appartement T3 neuf, au sein d'une petite résidence chaleureuse et à taille humaine, un havre de paix situé à Gujan-Mestras, en lisière de forêt.

Un cadre de vie exceptionnel :

  • Résidence neuve de standing, composée de 24 appartements du T1 au T4, répartis dans 2 bâtiments à taille humaine (R+1).
  • Architecture contemporaine inspirée du Bassin, s'intégrant harmonieusement dans son environnement arboré.
  • Environnement calme, paisible et verdoyant, idéal pour se ressourcer.

Caractéristiques de l'appartement :

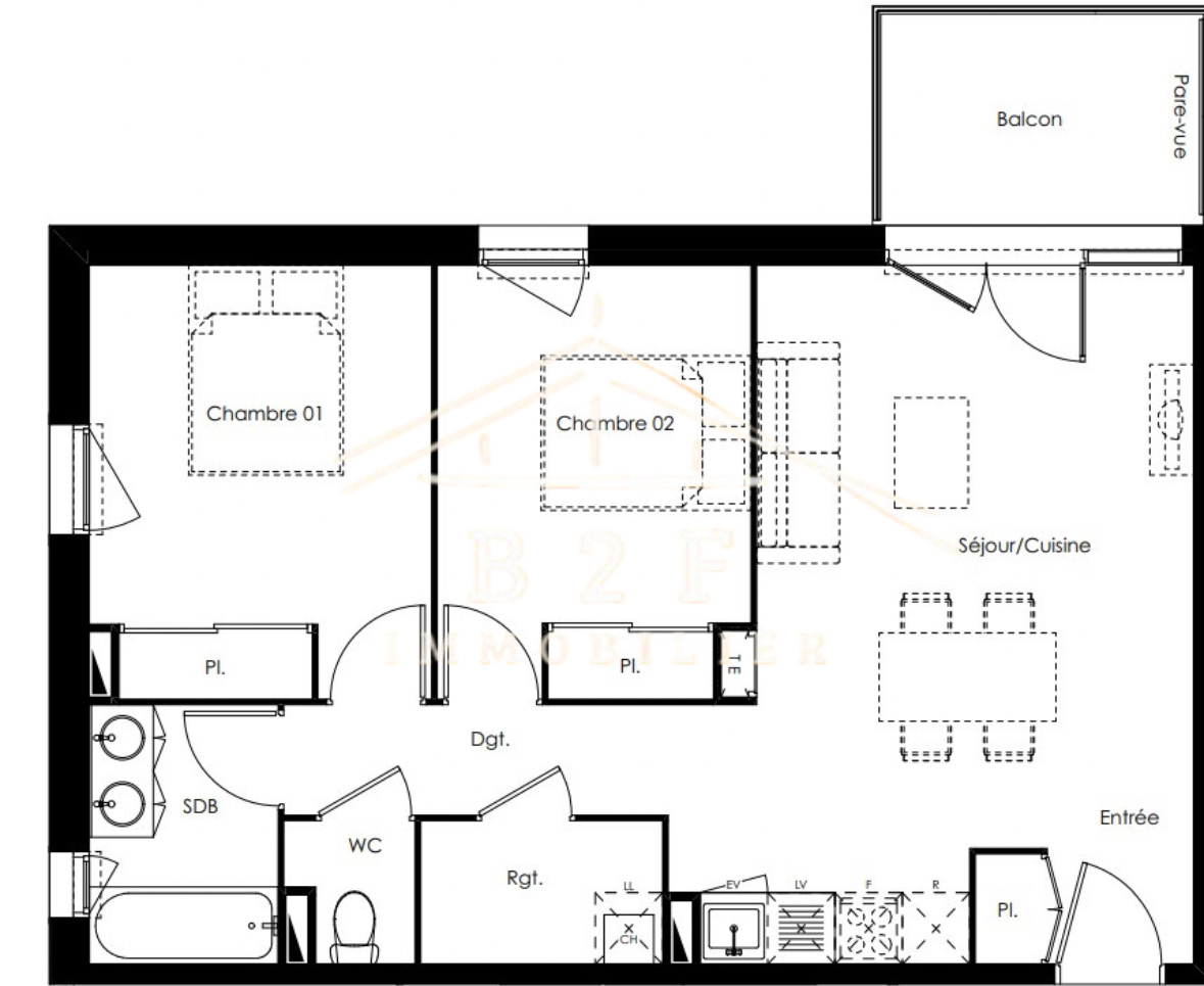
  • Type : T3 neuf
  • Extérieur : Balcon privatif, pour profiter des belles journées ensoleillées et de la vue sur la forêt.
  • Stationnement : 2 places de parking incluses
  • Prestations : Appartement lumineux et fonctionnel, finitions soignées, respect des normes énergétiques en vigueur.

Les atouts de la résidence :

  • Situation privilégiée : à proximité des commodités (commerces, transports, écoles) tout en bénéficiant d'un environnement naturel préservé.
  • Espaces extérieurs : balcons,
  • Résidence sécurisée et paysagée.

Idéal pour :

  • Primo-accédants : éligible au PTZ
  • Investisseurs (possibilité de bénéficier des avantages fiscaux du neuf) : LMNP
  • Personnes à la recherche d'un cadre de vie paisible et proche de la nature

Ne manquez pas cette opportunité unique d'acquérir un appartement neuf dans un environnement privilégié à Gujan-Mestras. Contactez-nous dès maintenant pour une visite !"

Les caractéristiques Du bien

Code postal 33470
Surface habitable (m²) 61,09 m²
Surface loi Carrez (m²) 38,60 m²
Nombre de chambre(s) 2
Nombre de pièces 3
Etage 1
Nombre de niveaux 1
Ascenseur NON
Nb de salle de bains 1
Cuisine Américaine
Mode de chauffage Gaz
Type de chauffage TRAD_TYPE_CHAUFF_CHAUDIERE
Format de chauffage Individuel
Interphone OUI
Visiophone OUI
Balcon OUI
Cave NON
Année de construction 2024
statut du syndic pas de procédure en cours

Les infos Financières

Prix de vente honoraires TTC inclus 332 900 €

Les infos Energetiques

DPE GES
DPE en cours

Nos outils

Imprimer

Localisation Du bien

  • Commerces et santé
  • Loisirs
  • Ecoles
  • Transports
  • Pratique
Intéressé(e) par Ce bien ?

* Champ obligatoire

contacter l'agence
Les informations recueillies sur ce formulaire sont enregistrées dans un fichier informatisé par La Boite Immo agissant comme Sous-traitant du traitement pour la gestion de la clientèle/prospects de l'Agence / du Réseau qui reste Responsable du Traitement de vos Données personnelles. La base légale du traitement repose sur l'intérêt légitime de l'Agence / du Réseau. Elles sont conservées jusqu'à demande de suppression et sont destinées à l'Agence / au Réseau. Conformément à la loi « informatique et libertés », vous disposez des droits d’accès, de rectification, d’effacement, d’opposition, de limitation et de portabilité de vos données. Vous pouvez retirer votre consentement à tout moment en contactant directement l’Agence / Le Réseau. Consultez le site https://cnil.fr/fr pour plus d’informations sur vos droits. Si vous estimez, après avoir contacté l'Agence / le Réseau, que vos droits « Informatique et Libertés » ne sont pas respectés, vous pouvez adresser une réclamation à la CNIL. Nous vous informons de l’existence de la liste d'opposition au démarchage téléphonique « Bloctel », sur laquelle vous pouvez vous inscrire ici : https://www.bloctel.gouv.fr Dans le cadre de la protection des Données personnelles, nous vous invitons à ne pas inscrire de Données sensibles dans le champ de saisie libre.
Ce site est protégé par reCAPTCHA, les Politiques de Confidentialité et les Conditions d'Utilisation de Google s'appliquent.
Ces biens peuvent aussi vous intéresser
Biganos (33380)

Appartement T3 avec BALCON et PARKING à Biganos

Gujan-Mestras (33470)

APPARTEMENT NEUF LIVRABLE T1 2027 / 0 FRAIS D'AGENCE / FRAIS DE...